Location:
Suffolk, UK

Client:
Private

Visualisations and drawings:
SOUP

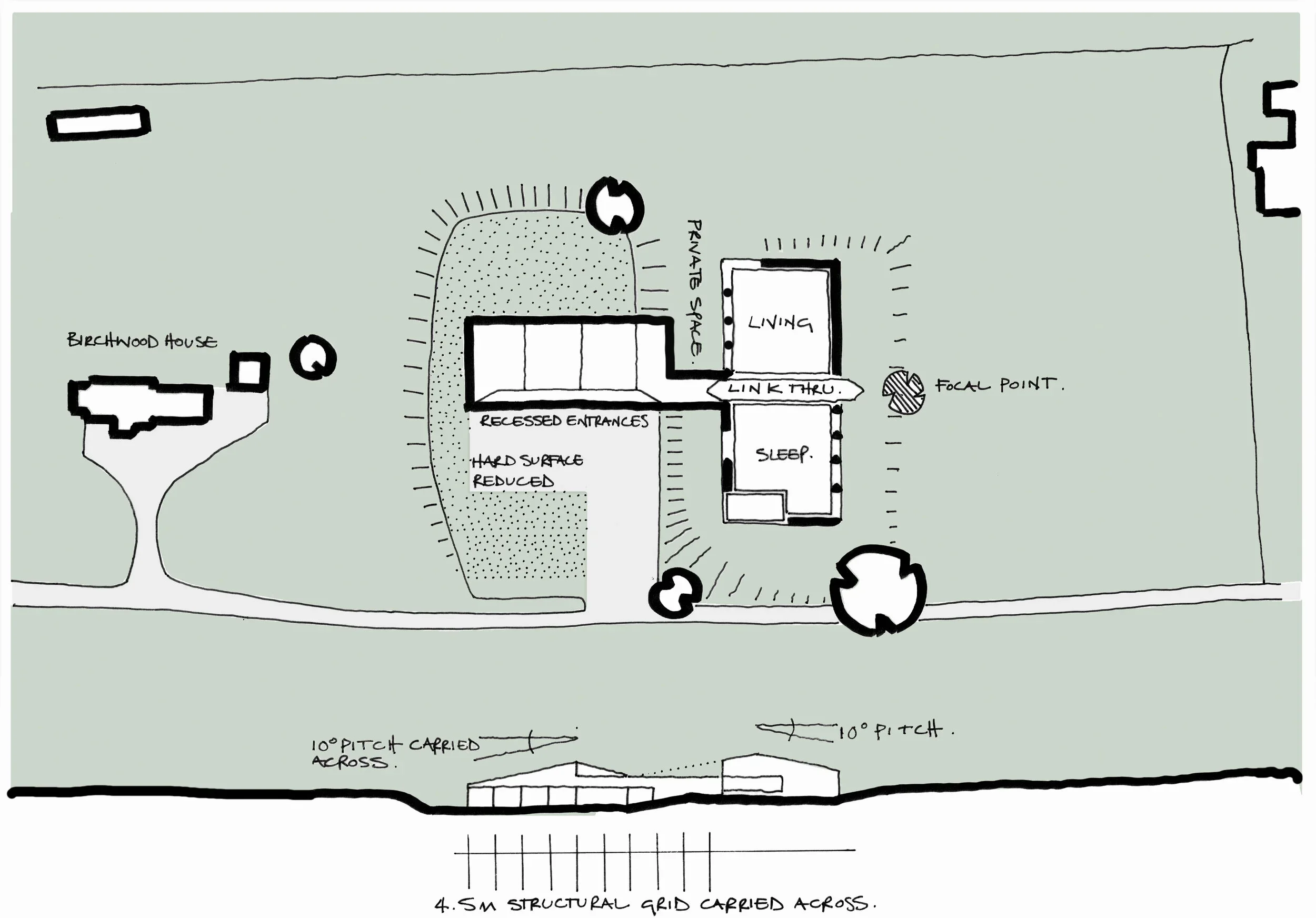
The Birchwood development reinterprets the scale and language of traditional agricultural barns to create a contemporary yet deeply contextual rural scheme. Located within an Area of Outstanding Natural Beauty, the design preserves the simple, linear forms of the existing buildings, maintaining their agricultural character while introducing a restrained and carefully considered modern expression.

The former tractor store is converted into a four–five bedroom family dwelling, retaining its original volumetric presence. A dilapidated grain store is replaced with two self-catering holiday cottages, positioned to sit comfortably within the established farmstead arrangement. A low, single-storey link connects the elements, conceived as a subtle architectural intervention that forms the entrance to the main house and a sheltered porch to the cottages. This approach minimises visual impact across the open landscape, ensuring the development reads as a cohesive and sensitive addition to its setting.

The material strategy draws on local vernacular traditions while expressing a contemporary architectural language. Vertically oriented timber cladding, sourced locally, references the texture and rhythm of traditional barn structures, allowing the buildings to weather naturally and settle into the landscape over time. This is paired with a standing seam metal roof, providing a refined, minimalist counterpoint and delivering long-term durability with low maintenance requirements.

Masonry elements utilise reclaimed and sustainably sourced brickwork, anchoring the scheme in a sense of permanence and continuity. High-performance glazing is carefully detailed and positioned to frame long views across the AONB, strengthening the relationship between interior spaces and the surrounding landscape while delivering excellent thermal performance. Collectively, the materials balance craft, longevity, and environmental responsibility.

Securing planning consent under Paragraph 80 of the National Planning Policy Framework (now Paragraph 84) presented a significant challenge. This policy permits new dwellings in the open countryside only where proposals demonstrate exceptional architectural quality, innovation, and a clear response to their landscape context.

Paragraph 80 approvals remain rare, requiring schemes to satisfy rigorous criteria including architectural excellence, landscape sensitivity, and advanced sustainability performance. The process demands a carefully developed design narrative supported by robust technical and environmental strategies.

For Birchwood, close collaboration with planning consultants Fisher Jones Greenwood LLP was integral to navigating this process. Their guidance helped articulate a compelling planning case that demonstrated the scheme’s architectural merit, contextual sensitivity, and environmental credentials. The successful approval of the project establishes Birchwood as a benchmark for high-quality rural architecture, where contemporary design and landscape-led thinking are intrinsically aligned.

Previous
Previous

Sarnia Cottage

Next
Next

Broombank Extension